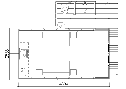
If the question is, ” What is the least amount of house we need to live a beautiful life?” then maybe this little Timber building is the answer. Its interior measures less than 12sqm but can surprisingly sleep 4 adults. But this little building also answers some other key questions that are especially relevant to our time and to our place in the world.





